
Дизайн квартиры в ЖК Princesse Royal выполнен в эко стиле с акцентом на натуральные материалы и спокойные теплые цвета. Используются износостойкие природные фактуры — натуральный дуб и бамбук, черный базальт, которые создают атмосферу уюта и экологичности. Все поверхности функциональны и долговечны, что важно для аренды премиум-класса.
Гостиная оформлена с диваном из органического хлопка мягкого бежевого цвета размером 2600x1900x850 мм. К нему — кофейный столик из массива тика 1400x700x400 мм с живым краем. Стены окрашены в теплый белый RAL 9010, а пол выполнен из инженерной доски натурального светлого дуба с матовой отделкой. Элементы цвета шалфей зелёного Pantone 15-6316 TCX добавляют акценты через аксессуары. Освещение — встраиваемые светильники Flos 3000K и подвесы из янтарного стекла с латунными креплениями.
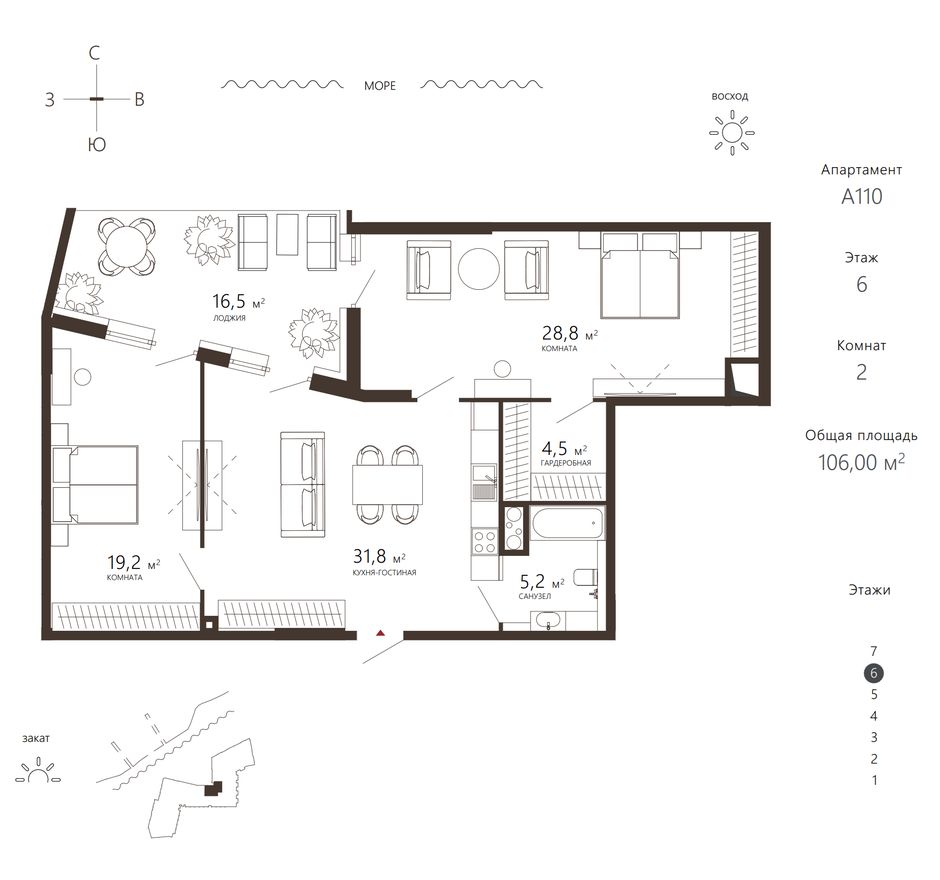
Кухня площадью 31.8 м² отделана фасадами из бамбукового шпона с матовым лаком и механизмом push-to-open без видимой фурнитуры. Столешница — черный базальт толщиной 40 мм с шлифованной поверхностью. Пол тот же светлый натуральный дуб, стены — теплые белые. Освещение — те же встраиваемые светильники Flos и подвесы из янтарного стекла. Гарнитур эргономичен, материалы экологичны и износостойки.
Спальня оснащена кроватью king size с каркасом из сертифицированного дуба, мягким изголовьем из льна цвета мягкий мох размером 2000x1800x1150 мм по высоте. Стены в теплом белом RAL 9010, пол — светлый инженерный дуб. В центре — акценты цвета шалфей зелёного Pantone 15-6316 TCX в текстиле. Мебель и отделка максимально натуральные, создают эффект покоя и релакса.
Санузел выдержан в эко стилистике и премиальном премиальном качестве отделки. Использованы натуральные, водостойкие материалы. Стены — теплый белый RAL 9010, пол — светлый дуб под защитой. Освещение — встраиваемые теплые LED светильники Flos. Интерьер минималистичен, функционален и комфортен, с акцентом на экологичность и долговечность.