+7 958 538 31 64

Номер только для звонков, сообщения недоступны

Наведите камеру телефона на код, чтобы быстро набрать номер

Заказать бесплатный звонок
Запросить презентацию
Задать вопрос
Войдите или зарегистрируйтесь

Войдите в аккаунт, чтобы добавлять объекты в Избранное и получить доступ к персональным скидкам

Введите код из СМС

Отправили его на: +7 (999) 123-45-67

Отправить код повторно
Москва/МО
Кабинет агента
Вход
Ильдар
Укажите регион поиска

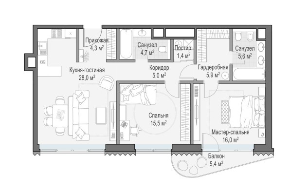
Квартира в ЖК Дом Лаврушинский

94 объекта
1 / 8
Тип объекта
Студия
1
2
3
4+
Срок сдачи
Сдан
До 4 кв. 2025
До 1 кв. 2026
До 2 кв. 2026
До 3 кв. 2026
До 4 кв. 2026
До 1 кв. 2027
До 2 кв. 2027
Цена, RUB
0 - 0
От
До
Площадь общая (от - до), м2
0 - 0
От
До
Отделка
Предчистовая отделка
Без отделки
Чистовая отделка
Без стен
С мебелью
Сбросить
Применить