Студия, 25.7 м² в ЖК Заречье Парк, Москва — цена 10 604 787 ₽ | RedCat
+7 (981) 467-77-66

Номер только для звонков, сообщения недоступны

Заказать бесплатный звонок

Получить презентацию

Задать вопрос

Подписаться на уведомления

Подписаться на уведомления

Уведомлять о снижении цены по вашим параметрам

Это RedCat
Войдите или зарегистрируйтесь

Войдите в аккаунт, чтобы добавлять объекты в Избранное и получить доступ к персональным скидкам

Введите код из СМС

Отправили его на: +7 (999) 123-45-67

Отправить код повторно
Москва/МО
Кабинет агента
Вход
Ильдар
Укажите регион поиска
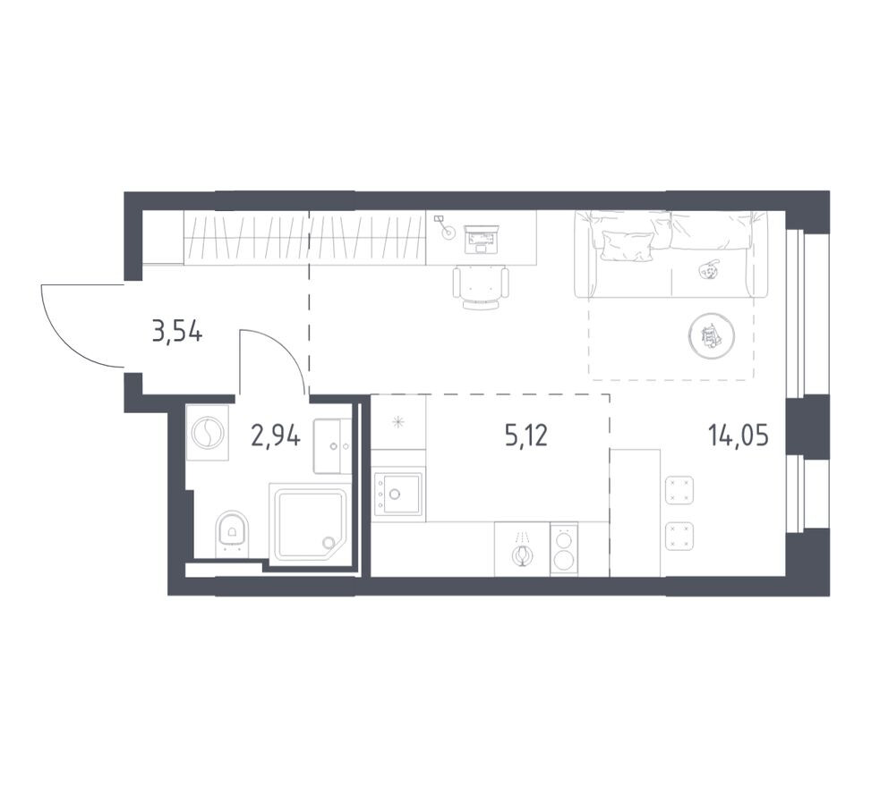
Студия-квартира, 25.7 м²

Студия-квартира, 25.7 м²

₽ 10 604 787.00
₽ 413 441.99
ЖК
Заречье Парк
Застройщик
ГК Самолет
Класс ЖК
Бизнес
Срок сдачи
4 кв. 2024
Площадь общая
25.65 м²
Позвонить
Узнать условия

Как формируется рейтинг RedCat

ул. Заречная

Очаково
7 мин.
Получить персональную подборку похожих квартир под ваш бюджет и цели

Об объекте

Тип объекта
Студия-квартира
Отделка
Без отделки
Этаж
8 / 9
Площадь общая
25.65 м²
Площадь жилая
14.05 м²

Преимущества ЖК

  • Двор без машин
  • Детский сад на территории
  • Панорамное остекление
  • Рядом парк
  • Теннисный корт
  • У воды
  • Школа на территории

Пространство для жизни рядом с природой и технологиями

«Заречье Парк» — это жилой комплекс бизнес-класса, расположенный неподалёку от инновационного центра «Сколково». Здесь соседствуют современный комфорт и живописный Мещерский лесопарк, создавая уютную атмосферу для отдыха и жизни.

Концепция жилого комплекса «Заречье Парк»

  • Гармония природы и инноваций: квартал граничит с лесом, где проложены велодорожки и есть спортивные площадки.
  • Архитектурное единство: пять корпусов в духе голландского стиля сочетают традиционную кирпичную кладку с современными панелями.
  • Комфортные высоты: дома девятиэтажные, создающие спокойное пространство без громоздких строений.

Комфорт и удобство жизни в «Заречье Парк»

  • Квартиры с чистовой отделкой в нейтральных тонах представлены в разных форматах — от студий до четырёхкомнатных с удобными гардеробными и постирочными.
  • В лобби доминирует дизайнерская отделка, мягкая мебель и живые растения — это уютное место встречи и отдыха.
  • Подъезды с панорамным остеклением хорошо освещены и обеспечивают безопасность благодаря видимости с улицы.
  • На первых этажах расположены магазины, кафе и салоны красоты — всё, что нужно для повседневного удобства рядом с домом.

Дворы и благоустройство

  • Безопасные дворы без машин — идеальное пространство для тихого отдыха и игр детей.
  • В тематическом плейхабе ребёнок может играть под присмотром родителей, расположившихся в комфортной беседке.
  • Зоны для прогулок, катания на велосипеде, шахмат и тенниса расположены среди зелени и природного ручья.

Условия для детей

На территории комплекса работают детский сад, школа и поликлиника — все важные учреждения расположены рядом, чтобы родители могли чувствовать уверенность и комфорт.

Транспорт и расположение жилого комплекса

  • Выезд на МКАД занимает всего минуту — быстро и удобно для автомобилистов.
  • Проспект Генерала Дорохова в 3 минутах позволяет за 13 минут попасть до Третьего транспортного кольца.
  • Метро «Озерная» и «Говорово» в 10 минутах на автомобиле или около получаса без пересадок на общественном транспорте.
  • До аэропорта «Внуково» вы доедете за 17 минут — удобно для частых путешествий.

Преимущества жилого комплекса «Заречье Парк»

  • Лесопарковая зона с велосипедными и пешеходными дорожками рядом с домом.
  • Своя социальная инфраструктура: сад, школа, поликлиника в шаговой доступности.
  • Разнообразие квартир с чистовой отделкой и функциональными планировками.
  • Дворы без машин, безопасные для детей и спокойного отдыха.
  • Близость к инновационному центру «Сколково» и элитному гольф-клубу.
  • Подземный многоуровневый паркинг для владельцев автомобилей.
  • Современная архитектура с интересным сочетанием цвета и материалов.
  • Комфортные подъезды с панорамным остеклением и оборудованные колясочные.

Атмосфера, в которой хочется оставаться

«Заречье Парк» создаёт пространство, где легко найти баланс между спокойствием природы и динамикой города. Здесь можно гулять около воды, заниматься спортом, наслаждаться уютом дома и удобством инфраструктуры рядом — всё для того, чтобы каждый день был наполнен гармонией и комфортом.

Прочитать полное описание

ЖК на карте

ул. Заречная

Очаково
7 мин.
RedCat AI
Эта квартира не подходит?

Расскажите, что ищете — подберу варианты в других ЖК