RedCatФСК
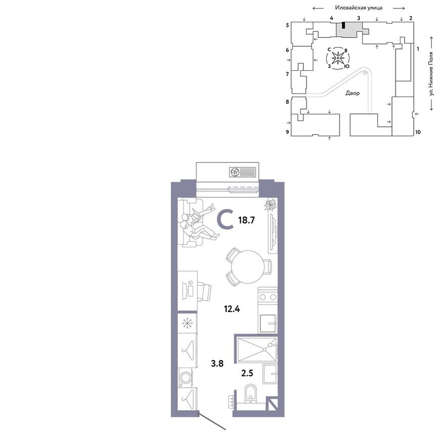
Студия, 18.7 м² в ЖК Страна.Заречная, Москва — цена ₽ 11 890 000.00 | RedCat