Москва - МО
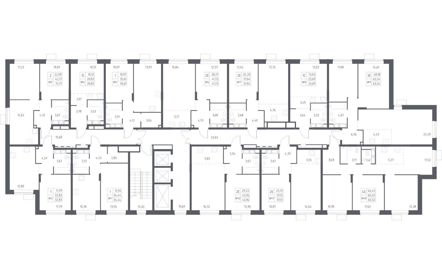
Студия, 22.7 м² в ЖК Новоград Павлино, Москва — цена ₽ 5 675 590.00 | RedCat