Москва - МО
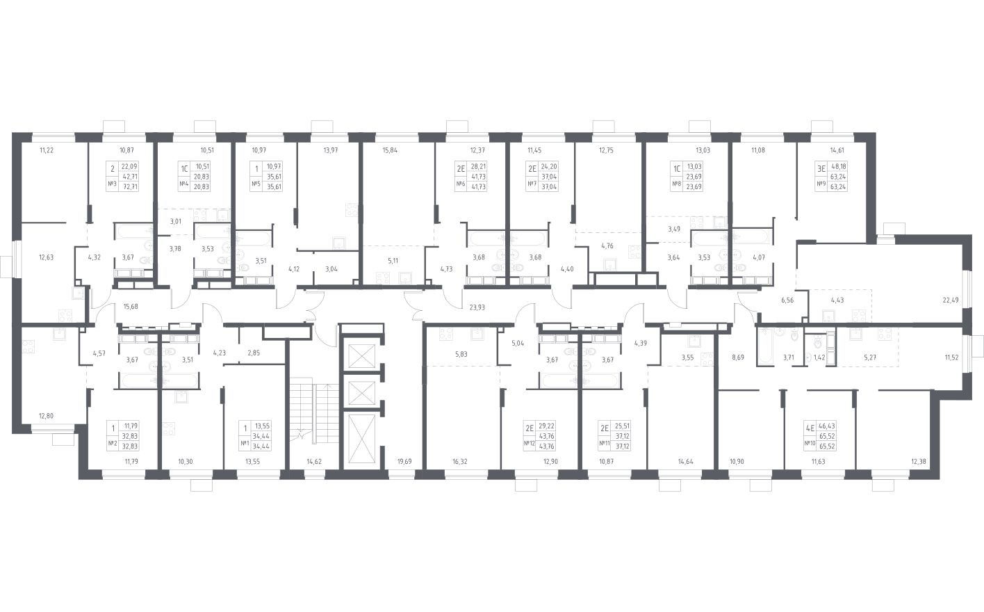
Студия, 22.7 м² в ЖК Новоград Павлино, Москва — цена ₽ 5 661 403.00 | RedCat