1к. квартира, 34.7 м² в ЖК Клевер, Москва — цена 3 723 680 ₽ | RedCat
+7 (981) 467-77-66

Номер только для звонков, сообщения недоступны

Заказать бесплатный звонок

Получить презентацию

Задать вопрос

Подписаться на уведомления

Подписаться на уведомления

Уведомлять о снижении цены по вашим параметрам

Это RedCat
Войдите или зарегистрируйтесь

Войдите в аккаунт, чтобы добавлять объекты в Избранное и получить доступ к персональным скидкам

Введите код из СМС

Отправили его на: +7 (999) 123-45-67

Отправить код повторно
Москва/МО
Кабинет агента
Вход
Ильдар
Укажите регион поиска
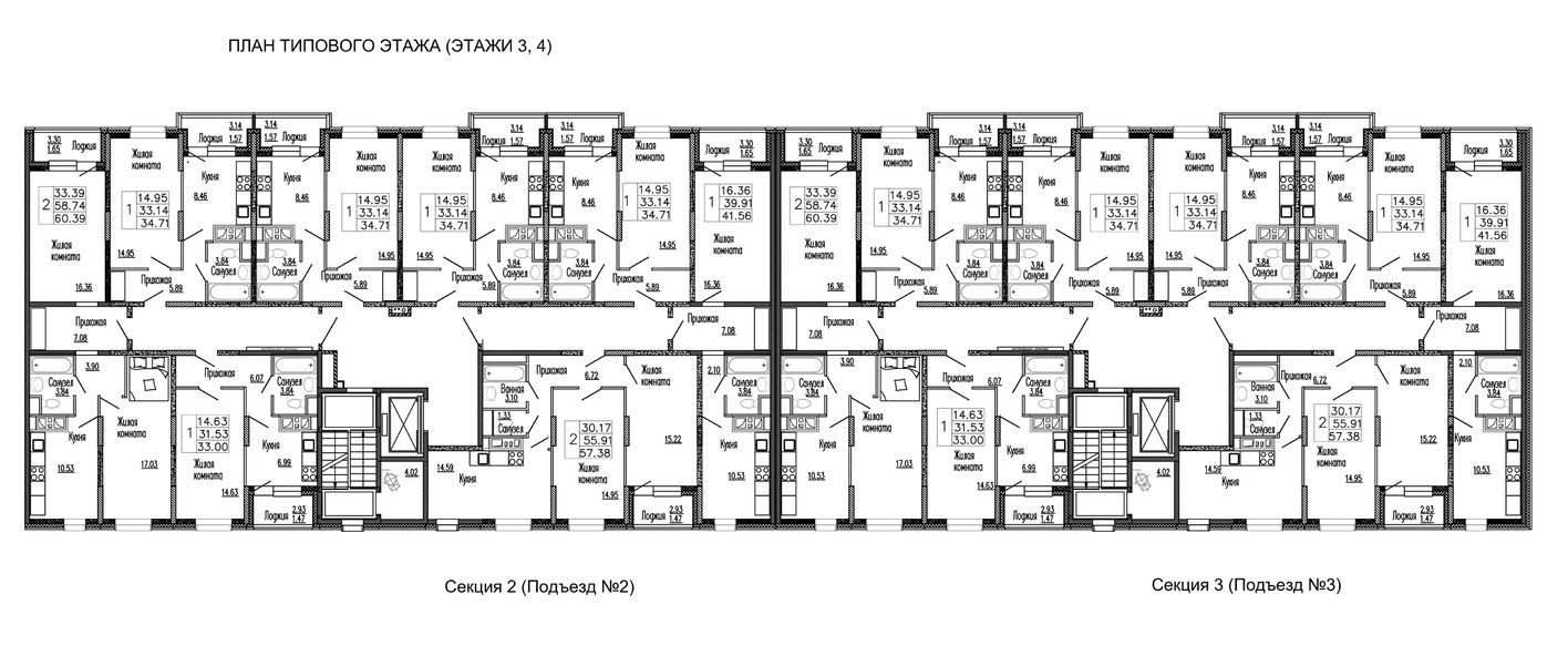
Планировка — 1к. квартира, 34.7 м² План этажа — 1к. квартира, 34.7 м²

1к. квартира, 34.7 м²

₽ 3 723 680.00
₽ 107 279.75
ЖК
Клевер
Застройщик
ТехноСтройОлимп
Класс ЖК
Комфорт
Срок сдачи
3 кв. 2025
Площадь общая
34.71 м²
Позвонить
Узнать условия

Как формируется рейтинг RedCat

Сергиево-Посадский район, ул. Горжовицкая

Получить персональную подборку похожих квартир под ваш бюджет и цели

Об объекте

Тип объекта
1к. квартира
Отделка
Без отделки
Этаж
3
Площадь общая
34.71 м²
Площадь жилая
14.95 м²
Площадь кухни
8.46 м²

ЖК на карте

Сергиево-Посадский район, ул. Горжовицкая

RedCat AI
Эта квартира не подходит?

Расскажите, что ищете — подберу варианты в других ЖК