Москва - МО
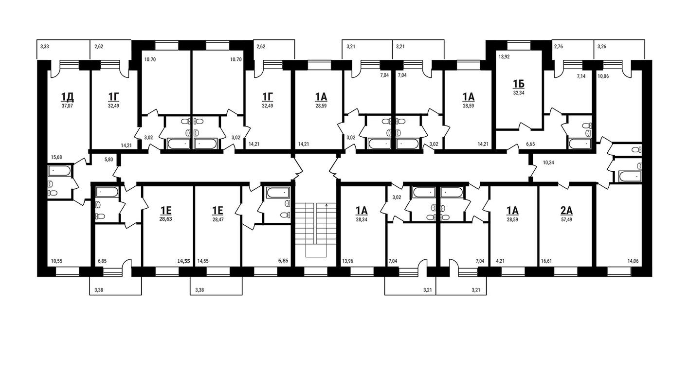
2к. квартира, 57.4 м² в ЖК Дружный, Москва — цена ₽ 8 000 000.00 | RedCat