Москва - МО
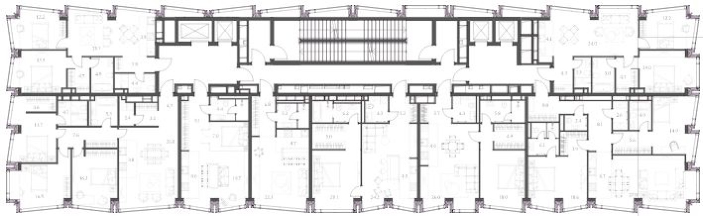
2к. квартира, 72.0 м² в ЖК AHEAD, Москва — цена ₽ 58 017 600.00 | RedCat