СПб - ЛО
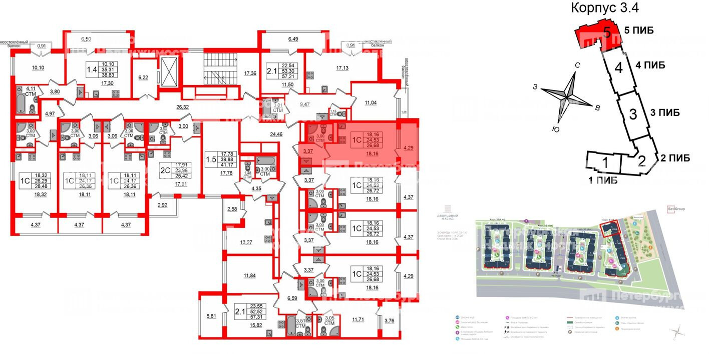
Студия, 24.5 м² в ЖК Дворцовый фасад, Санкт-Петербург — цена ₽ 6 500 000.00 | RedCat